Moorweidenstraße
22-24
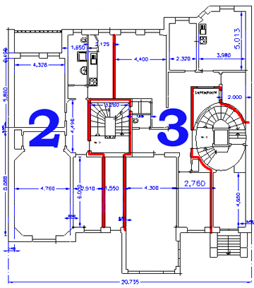
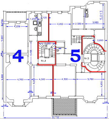
Per Klick auf den jeweiligen Grundriss, erhalten Sie detaillierte Informationen zu den einzelnen Wohnungen.
Erdgeschoss

1.Obergeschoss

2.Obergeschoss

3.Obergeschoss

Dachgeschoss

Kellergeschoss
