Saseler Damm 46
a-b
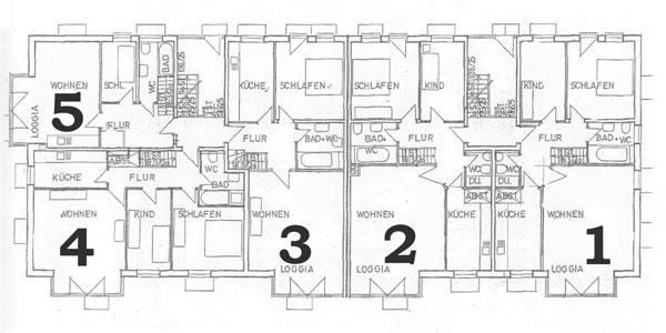
Per Klick auf den jeweiligen Grundriss, erhalten Sie detaillierte Informationen zu den einzelnen Wohnungen.
Erdgeschoss
1. Obergeschoss

Dachgeschoss

In der folgenden Galerie finden Sie beispielhafte Ausstattungsbilder von verschiedenen Wohnungen im Objekt.
![]() |
![]() |
![]() |
![]() |



